服务热线:15195518515在线客服:1464856260
传真号码:0517-86801009
邮箱号码:1464856260@qq.com
网 址:http://www.j357b.cn
地 址:江苏省金湖县理士大道61号
盐酸液位计的顶装式与侧装式区别及远传接线说明
关于顶装与侧装安装方式区别:
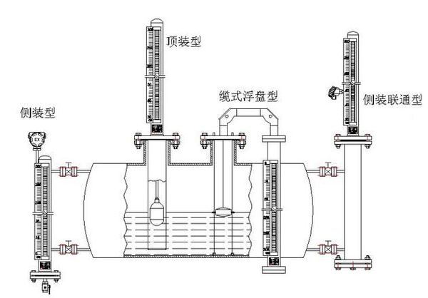
工业生产现场环境千差万别,为了适应更多工况的需求,各类现场过程仪表的安装也要根据现场条件的改变而灵活变动。盐酸液位计作为现场测量液位仪表的一种,对于安装的现场也有所要求。对于现场电流磁场的大小,安装空间的大小都有所要求,观测读数与检修位置都要有所考量。关于盐酸液位计安装方式一般可分为顶装与侧装两种,那么这两种安装方式安装的盐酸液位计在使用上也有所不同:
顶装的盐酸液位计必须要在安装时保持垂直,连杆也不能弯曲。一般是在地下槽罐、或工作台位于槽罐顶部的测量现场,需要选择此种安装方式,因为浮子要下行到容器内,所以安装法兰一般不得小于DN80,否则浮子直径过大无法通过法兰孔进入容器内。顶装的盐酸液位计使用时需要对指示器的磁翻板用所附磁钢进行一次引导,从而使盐酸液位计零位以上指示白色、零位以下指示红色,通过无触点报警开关使转换起触点按液位给定值动作从而达到液位控制的目的报警开关安装在液位计所需控制位置,转换器安装在控制室内。它是利用磁藕合原理来进行工作的,至顶装式此盐酸液位计安装完毕成功。
侧装的盐酸液位计安装于桶槽外侧的延伸管上,桶槽内部的液位可以由翻板指示器清楚得知。侧装式磁翻板在旁路管外侧亦可加装磁性开关,信号输出是由电气接点来完成的,盐酸液位计桶槽外侧装置延伸旁路管,由旁路管外加装液位指示器,旁路管内要放有磁铁的浮球,因为磁性的色片内装着和浮球刚好相反的磁性。从而当浮球上升的时候会吸引磁性色片而翻动。磁性色片的颜色会由白色翻为红色,以指示实际液面高度。

盐酸液位计的显示清晰、读数直观而且可以进行单体的全程测量,有着很好的实用性,不管是顶装还是侧装,都拥有着良好的性能。
关于盐酸液位计报警及远传信号接线说明:

一、系统构成及接线:
1、上、下限开关输出
由具有自保持作用的干簧开关和转换起组成,干簧开关和转换器分别安装于现场和控制室,由转换器提供3对触点开关。
2、电远传
由测量单元和变送单元两部分组成。
二、侧装式盐酸液位计是以磁浮子为测量元件,磁钢驱动翻柱显示,无需能源。适用于低温到高温、真空到高压等各种环境。是石油、化工等工业部门的理想液位测量产品。
三、侧装式盐酸液位计配置上下限开关输出可实现远距离报警、限位控制。配置变送器, 可实现液位的远距离指示、检测与控制。根据在容器上的安装位置不同,提供侧装和顶装两种方式。根据作介质的不同,提供不锈钢利ABS工程塑料两种材质;其中ABS特别适用于酸、碱等腐蚀性介质。



|